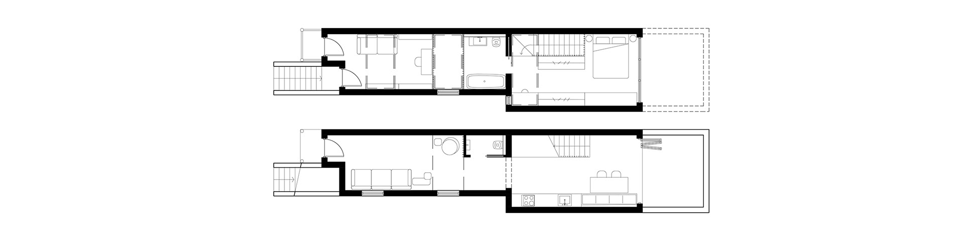
Concept design for a narrow dwelling in Newtown, Sydney, responding to the challenges of limited width with smart spatial planning and natural light integration. The layout maximises functionality by stacking spaces efficiently while maintaining a sense of openness. Vertical greenery and timber detailing introduce warmth and connection to nature, softening the compact proportions. Clean lines, light finishes, and strategically placed openings create a home that feels spacious, contemporary, and deeply connected to its urban context.